Punya rumah nyaman yang bikin betah seharian bukanlah hal mustahil jika kamu tahu kunci utamanya sejak awal. Saya akan membagikan rahasia mewujudkan rumah nyaman lewat berbagai tips rumah praktis yang bisa langsung kamu terapkan hari ini.
Ragam Tips agar Rumah Nyaman dan Sehat
Pilih furnitur yang sesuai

Kunci utama ruangan terasa lega adalah memilih perabotan yang ukurannya pas dengan luas area yang tersedia. Jangan memaksakan sofa raksasa di ruang tamu mungil karena hal itu hanya akan membuat pandangan terasa sesak.
Pemilihan furnitur yang tepat secara otomatis akan menciptakan kesan rumah sederhana tapi elegan di dalam ruanganmu. Pastikan juga setiap barang memiliki fungsi yang sangat jelas untuk menghindari penumpukan barang yang tidak perlu.
Selain ukuran, material furnitur juga sangat menentukan tingkat kenyamanan penggunaan dalam jangka waktu yang panjang. Pilih bahan yang mudah dibersihkan sehari-hari dan terbukti awet dipakai selama bertahun-tahun.
Warna furnitur yang senada dengan cat dinding juga dipercaya mampu memberikan efek visual yang lebih menenangkan. Keselarasan warna ini sangat penting untuk mendukung proses relaksasi mata setelah seharian beraktivitas di luar.
Tambahkan Tanaman

Kehadiran tanaman hijau di dalam ruangan sangat efektif menyaring udara kotor dan memberikan suplai oksigen segar. Suasana ruangan yang tadinya kaku akan langsung terasa jauh lebih hidup dan segar.
Pilih jenis tanaman hias dalam ruangan yang perawatannya cukup mudah seperti tanaman lidah mertua atau monstera. Jenis tanaman hias ini tidak membutuhkan asupan sinar matahari langsung setiap saat.
Jika kamu memiliki sisa ruang luar yang cukup memadai, cobalah menata area hijau yang tampak asri. Keberadaan taman rumah sederhana di desa bisa menjadi nilai tambah yang sangat bagus untuk terapi stres.
Meletakkan satu atau dua pot kecil di atas meja kerja atau sudut ruang tamu juga sangat direkomendasikan. Warna hijau alami terbukti secara ilmiah mampu membantu menurunkan tingkat kecemasan manusia.
Cek Sirkulasi Udara

Sirkulasi udara yang lancar adalah syarat mutlak yang harus dipenuhi untuk menciptakan sebuah hunian yang sehat. Udara kotor yang terperangkap di dalam ruangan harus bisa tergantikan dengan udara baru yang segar dari luar.
Pastikan semua jendela dan ventilasi terbuka setiap pagi hari untuk membiarkan udara bersirkulasi secara alami. Kebiasaan sederhana ini terbukti sangat ampuh untuk mencegah sebuah ruangan menjadi lembap dan berbau pengap.
Ruangan yang lembap berpotensi besar menjadi tempat bersarangnya jamur dan bakteri penyebab berbagai penyakit pernapasan. Hal ini tentu saja sangat bertolak belakang dengan konsep hunian sehat yang sedang kita bangun.
Penggunaan kipas angin jenis exhaust di beberapa area tertutup seperti dapur dan kamar mandi sangat membantu kelancaran udara. Alat listrik ini akan otomatis menyedot suhu panas dan bau tidak sedap keluar dari ruangan.
Desain Sesuai Iklim Indonesia

Memiliki hunian di kawasan negara tropis mengharuskan kita untuk beradaptasi dengan suhu panas dan curah hujan yang tinggi. Pemilihan material penutup atap dan sirkulasi cahaya menjadi fokus utama dalam perancangan awal.
Bentuk atap pelana sangat cocok diterapkan karena kemiringannya mampu menahan tampias air hujan yang lebat. Konsep atap ini sangat sering dijumpai pada rumah sederhana di desa yang sudah terbukti tangguh menghadapi cuaca ekstrem.
Gunakan material khusus penyerap panas pada bagian bawah atap atau cukup tambahkan lembaran insulasi pelindung. Suhu udara di dalam ruangan akan tetap terasa sejuk meskipun cuaca di luar sedang terik menyengat.
Area teras yang luas dilengkapi dengan overstek atap yang cukup panjang juga ampuh membantu menghalau paparan sinar matahari langsung. Ruangan di baliknya akan terasa jauh lebih teduh dan nyaman untuk digunakan bersantai.
Utamakan Kamar Tidur Nyaman

Kamar tidur adalah area yang paling krusial untuk mengembalikan energi tubuh setelah seharian lelah beraktivitas. Kualitas tidur kamu setiap malam sangat dipengaruhi oleh suasana kondusif di dalam ruangan ini.
Investasikan sebagian dana kamu pada pembelian kasur dan bantal berkualitas tinggi demi menjaga kesehatan tulang belakang. Waktu tidur yang nyenyak akan memastikan tubuh kembali bugar keesokan harinya.
Gunakan set sprei berbahan katun murni yang sangat lembut dan mudah menyerap keringat di malam hari. Kenyamanan kulit saat bersentuhan dengan permukaan kain sangatlah penting terutama di wilayah yang beriklim panas.
Batasi keberadaan berbagai barang elektronik seperti televisi atau layar komputer di dalam area istirahat utama ini. Paparan cahaya biru dari layar secara perlahan bisa merusak hormon tidur alami kamu.
Optimalkan Tata Ruang

Ruangan yang tertata sangat rapi tanpa banyak sekat tembok akan langsung terasa jauh lebih luas dan melegakan. Singkirkan benda atau barang yang sudah tidak terpakai ke dalam gudang agar tidak memakan tempat.
Terutama untuk hunian yang berukuran terbatas seperti rumah type 45, pengaturan tata letak barang menjadi hal yang sangat krusial. Menggabungkan area ruang tamu dan dapur dengan konsep terbuka bisa menjadi sebuah solusi yang cerdas.
Memaksimalkan fungsi lahan secara efisien bisa dilakukan dengan segera mengadopsi desain rumah kotak minimalis yang sangat praktis. Bentuk geometris ini sengaja menghilangkan sudut mati di dalam rumah yang seringkali berakhir mubazir.
Gunakan model furnitur yang multifungsi seperti kerangka tempat tidur yang memiliki deretan laci penyimpanan tersembunyi di bawahnya. Trik penyimpanan ini akan sangat menghemat kapasitas lemari bajumu secara signifikan.
Gunakan Dekorasi yang Menenangkan
Menambahkan dekorasi secara berlebihan justru bisa membuat ruangan tampak penuh dan sangat melelahkan bagi mata yang memandang. Pilihlah satu atau dua hiasan dinding yang benar-benar memiliki nilai makna mendalam buatmu.
Warna-warna dasar yang netral seperti putih bersih, krem, atau pastel sangat disarankan untuk area cat dinding utama. Palet warna lembut ini dipercaya mampu memberikan efek psikologis yang sangat menenangkan pikiran.
Kamu bisa memajang bingkai foto keluarga atau lukisan favorit di beberapa titik sudut yang strategis. Sentuhan personal semacam ini membuat hunian terasa jauh lebih hidup dan memiliki karakter tersendiri.
Pastikan setiap elemen dekorasi tersebut tetap selaras dengan gaya desain interior hunian secara keseluruhan. Jangan pernah mencampur terlalu banyak tema berlawanan dalam satu ruangan agar tampilannya tidak terkesan berantakan.
Kurangi Kebisingan

Ketenangan adalah sebuah elemen penting dari kriteria hunian yang ideal dan bebas dari sumber stres. Suara bising kendaraan dari luar jalan raya tentu sangat mengganggu waktu istirahat seluruh anggota keluarga.
Pasanglah model tirai kain tebal yang berlapis ganda untuk membantu meredam intensitas suara yang masuk lewat celah jendela. Material kain bertekstur rapat sangat efektif menyerap rambatan gelombang suara berfrekuensi tinggi.
Menanam deretan pohon rindang di area halaman depan juga bisa berfungsi ganda sebagai peredam bising alami. Lebatnya dedaunan akan secara efektif memecah suara kendaraan sebelum berhasil mencapai dinding rumahmu.
Di dalam ruangan itu sendiri, penempatan lembaran karpet di area tertentu bisa ampuh mengurangi efek gema yang mengganggu. Percakapan antar penghuni di dalam rumah akan terdengar jauh lebih lembut dan terasa intim.
Perhatikan Pencahayaan Alami

Sinar hangat matahari pagi yang masuk ke dalam ruangan berfungsi efektif sebagai pembunuh berbagai bakteri alami. Ruangan yang cukup terang juga terbukti membuat suasana hati para penghuninya jauh lebih positif.
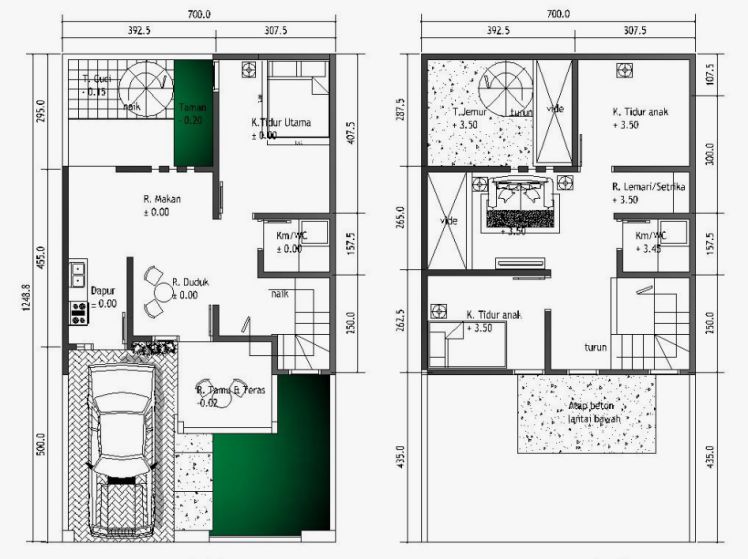
Sebagai contoh yang nyata, pada rumah lebar 7 meter 1 lantai, penempatan jendela kaca berukuran besar di bagian depan sangat disarankan. Hal teknis ini akan memaksimalkan cahaya alami yang masuk untuk menerangi interior sepanjang hari.
Jangan pernah menghalangi area jendela dengan meletakkan lemari tinggi yang justru menutupi sumber masuknya cahaya. Biarkan sinar alami matahari menyapu seluruh sudut area lantai dengan sangat leluasa.
Sistem pencahayaan alami ini juga otomatis akan sangat menghemat lonjakan tagihan listrik kamu di setiap bulannya. Kamu sama sekali tidak perlu menyalakan lampu penerangan pada saat siang hari sedang cerah.
Wujudkan Hunian Rumah Anda
Kami punya solusi yang paling tepat bagi kamu yang ingin bangun rumah murah cepat namun tetap menginginkan standar kualitas tinggi. Pemilihan material bahan bangunan yang selektif dan manajemen waktu kerja adalah dua kuncinya.
Siapakah Dinasti Nawa Karya

Dinasti Nawa Karya adalah perusahaan konsultan jasa arsitektur dan kontraktor fisik yang sudah sangat berpengalaman di Indonesia. Kami berdedikasi penuh menciptakan mahakarya bangunan yang tidak hanya memukau tetapi juga kokoh secara struktur.
Tim kreatif kami siap memberikan berbagai inspirasi desain rumah yang paling sesuai dengan selera serta anggaran kebutuhanmu. Pengalaman menangani ratusan proyek bertahun-tahun membuat kami sangat paham terhadap detail terkecil setiap pekerjaan.
Layanan Dinasti Nawa Karya

Kami menawarkan berbagai solusi layanan terintegrasi untuk segala proyek pembangunan baru ataupun perombakan renovasi kamu. Semua layanan teknis ini dikerjakan langsung oleh para tenaga ahli yang sudah memiliki sertifikasi resmi.
Jasa Desain Rumah Minimalis Modern
Konsep hunian bergaya minimalis selalu digemari karena memiliki tampilan visual yang terlihat bersih dan sangat fungsional. Kami merancang hunian yang selalu mengutamakan nilai efisiensi ruang tanpa pernah mengorbankan unsur estetika.
Setiap tarikan garis dan sudut ruang bangunan diperhitungkan dengan sangat cermat oleh tim arsitek handal kami. Hasil akhirnya adalah sebuah karya fasad yang tampak modern dan penataan ruang dalam yang sangat lega.
Arsitek Perumahan dan Siteplan
Bagi kamu para pelaku bisnis developer, kami turut menyediakan layanan perencanaan sebuah kawasan perumahan secara menyeluruh. Pembuatan masterplan yang terukur sangat menentukan tingginya nilai jual unit properti di masa depan.
Kami memikirkan detail kompleks seperti infrastruktur jalan utama, sistem drainase, hingga penentuan titik fasilitas umum. Sebuah kawasan mandiri yang dirancang dengan pertimbangan matang akan menjadi aset investasi properti yang sangat menguntungkan.
Jasa Gambar Rumah Mewah dan Villa
Jika kamu kebetulan mendambakan tingkat kemegahan yang eksklusif, maka layanan ini sangat tepat untuk segera mewujudkannya. Kami senantiasa menciptakan desain berkelas dengan pilihan material premium yang kuat mencerminkan nilai prestis tinggi.
Fokus utama kami pada layanan ini adalah menghadirkan kesan mewah sebuah resor liburan ke dalam hunian pribadimu. Setiap sudut ruangan didesain secara khusus untuk memanjakan mata dan memberikan tingkat kenyamanan bersantai yang paling tinggi.
Jasa Desain Interior Rumah dan Kantor
Kenyamanan dalam sebuah bangunan sama sekali tidak bisa lepas dari tahap perancangan interior yang terkonsep jelas. Kami dengan teliti menyelaraskan tata letak aneka perabot, skema pencahayaan buatan, dan paduan warna cat dominan.
Ruang kerjamu nantinya akan langsung disulap menjadi area yang sangat produktif dan sangat menginspirasi gagasan baru. Sementara itu, area hunianmu akan selalu diisi dengan sentuhan visual hangat yang membuat anggota keluarga semakin betah.
Konsultan Struktur Bangunan
Faktor keamanan adalah sebuah prioritas mutlak yang sama sekali tidak bisa ditawar lagi dalam mendirikan properti. Ahli perhitungan struktur kami akan menghitung rinci setiap beban mati dan kekuatan tarik material secara presisi.
Seluruh bangunan yang kami kerjakan selalu dijamin kuat bertahan terhadap guncangan gempa dan perubahan cuaca ekstrem tahunan. Kamu bersama keluarga bisa tertidur dengan sangat nyenyak setelah mengetahui hunianmu berdiri dengan sangat aman.
Kontraktor Rumah dan Renovasi
Kami juga aktif melayani tahapan pelaksanaan fisik di lapangan mulai dari lahan kosong hingga proses serah terima kunci. Seluruh standar kualitas pekerjaan lapangan dikontrol sangat ketat oleh tim pengawas yang bekerja disiplin.
Kami selalu memastikan tahapan proyek tersebut bisa selesai tepat sesuai jadwal waktu dan sesuai batasan anggaran yang disepakati. Tidak akan ada lagi kisah buruk tentang biaya yang mendadak membengkak karena sistem perencanaan kerja yang asal-asalan.
Gratis konsultasi – Hubungi Kami

Jangan pernah ragu sedikitpun untuk mendiskusikan rencana tahap pembangunanmu bersama tim arsitek ahli dari kami. Kami siap memberikan waktu sesi konsultasi secara gratis untuk duduk mendengarkan semua kebutuhan hunianmu.
Segera saja hubungi admin kami melalui berbagai jalur kontak resmi yang telah tersedia di dalam halaman website ini. Mari kita bersama wujudkan properti idamanmu menjadi kenyataan yang membanggakan bersama tim profesional Dinasti Nawa Karya.
Kesimpulan
Menciptakan sebuah hunian tempat tinggal yang ideal jelas membutuhkan sebuah proses yang memadukan nilai estetika dan fungsi secara seimbang. Semua teori dan tips rumah yang sudah saya jelaskan dengan detail di atas sangat aplikatif untuk langsung kamu coba.
Pastikan selalu agar rumah nyaman impianmu bisa segera terealisasi lewat bantuan tangan tenaga ahli yang memang tepat dan terpercaya. Dinasti Nawa Karya akan selalu siap sedia dalam membantu memandu setiap langkah pembangunan proyekmu dari garis awal hingga garis akhir.
FAQ
Apa hal pertama yang harus diperhatikan agar ruangan tidak terasa sempit?
Hal yang paling pertama harus kamu lakukan adalah memperhatikan kembali ukuran furnitur yang kamu gunakan agar sepadan dengan luas ruangan. Hindari membeli perabotan dengan ukuran terlalu masif karena hal itu akan membuat area pandang tertutupi dan memberikan kesan sangat sempit.
Apakah tanaman benar-benar bisa membuat ruangan lebih sejuk?
Tentu saja, karena tumbuhan hijau melakukan proses alami untuk memproduksi oksigen sambil efektif menyerap kandungan karbon dioksida di sekitarnya. Sirkulasi udara yang lebih sehat ini secara langsung membuat suhu di dalam ruangan terasa lebih sejuk sekaligus menciptakan suasana rileks.
Bagaimana cara termudah mengatasi ruangan yang bau dan lembap?
Cara paling ampuh dan gratis adalah rutin membuka seluruh jendela lebar-lebar pada pagi hari untuk membiarkan terjadinya pertukaran udara. Jika ruangan kamu tidak memiliki akses jendela luar, maka menambahkan kipas exhaust menjadi solusi terbaik untuk membuang udara kotor.
Mengapa atap rumah di Indonesia disarankan berbentuk pelana?
Bentuk atap pelana memiliki tingkat kemiringan curam yang sangat ideal untuk menahan terpaan hujan deras agar air langsung turun membuang. Desain sederhana ini sudah terbukti secara efisien mampu mencegah kebocoran yang sering terjadi saat menghadapi iklim tropis yang ekstrem.
Apa yang membuat suasana ruang istirahat lebih mendukung tidur nyenyak?
Pilihan jenis kasur yang menopang tulang belakang serta paduan sprei bahan katun yang lembut menjadi modal utama sebuah kenyamanan. Mengurangi penggunaan perangkat elektronik dan mengganti cahaya ruangan menjadi sedikit lebih redup hangat juga ampuh merangsang otak untuk tertidur.
Bagaimana mengatur ruang tamu pada hunian yang tidak terlalu besar?
Sebaiknya terapkan konsep pengaturan terbuka tanpa menggunakan partisi dinding pemisah yang tebal antara area duduk tamu dan area belakang. Pilihlah beberapa unit furnitur ringkas dengan sistem penyimpanan ganda agar area lantai tetap terlihat bersih tanpa hambatan barang yang berserakan.
Warna cat seperti apa yang direkomendasikan untuk tembok bagian dalam?
Pemilihan warna netral dan cerah seperti putih susu, krem abu, atau warna turunan pastel sangat dianjurkan untuk cat dinding bagian dalam. Warna dasar ini efektif memantulkan cahaya buatan secara optimal dan memberikan kesan psikologis yang tidak membebani pikiran penghuninya.
Adakah cara murah mengurangi masuknya suara berisik dari luar?
Memasang lapisan tirai berbahan tebal pada bukaan jendela sangat efektif meredam intensitas suara frekuensi tinggi yang mencoba masuk. Meletakkan karpet kain pada lantai di sekitar sumber datangnya suara juga bisa menahan gema agar suasana di dalam lebih tenang.
Kenapa pencahayaan alami selalu dinilai lebih baik daripada lampu?
Sinar terang matahari pagi mampu membunuh bakteri yang bersarang di ruangan lembap sekaligus memberikan kesan ruangan yang jauh lebih segar. Hal positif ini juga otomatis akan membuat tagihan beban listrik di tempat tinggalmu menjadi jauh lebih hemat dan ramah kantong.
Bolehkah mencampur banyak gaya hiasan di ruang keluarga?
Meskipun itu bebas dilakukan, mencampur terlalu banyak aliran dekorasi justru akan membuat pandangan terasa letih dan menghilangkan fokus ruangan. Lebih baik pilih satu tema utama yang senada dengan warna cat tembok lalu tambahkan sedikit sentuhan barang personal yang berkesan.





